EPLAN2022破解版-EPLAN Electric P8 2022免费版下载 附安装教程和激活码
EPLAN Electric P8 2022简称EPLAN2022,一款知名的电气图设计软件,具有常用的电路原理图设计、报表生成和数据分析等多种功能,灵活的工作设计流程,可无缝集成和交叉引入所有项目的数据。EPLAN P8 2022版本发布了,用户界面调整为浅色或深色设计,可借助功能区为导航器和图形编辑器选择命令,还具有用于符号、设备和宏的新的插入中心,更新了项目数据库,重新设计了部件管理功能。知识兔小编为大家分享的是EPLAN2022破解版,附有安装教程和激活码,激活之后就能免费使用了。
EPLAN2022安装破解教程
1.解压下载的软件,得到安装文件和破解文件,安装之前需要确保电脑上安装.NET4.7.2否则无法安装
2.首先知识兔双击运行setup.exe文件,进入EPLAN2022安装界面,知识兔选择程序Electric P8,单击【继续】
3.查看软件的版权信息,单击【继续】
4.选择程序目录、EPLAN原始主数据、系统主数据、公司标识、用户设置和测量单位等参数
5.选择安装的程序功能、主数据和语言,注意语言确认是否是【简体中文】,单击【安装】开始安装
6.接下来EPLAN2022就开始安装了,如图,如果知识兔弹出一些窗口选择【允许程序所有操作】即可
7.安装时间比较长,知识兔要耐心等待,安装完成,单击【完成】按钮退出安装向导
8.进入”C:WindowsSystem32driversetc”路径下找到并以记事本的形式带打开”HOSTS”文件:

9.修改里面的内容为”0.0.0.0 eplan.prod.sentinelcloud.com” “0.0.0.0 licensingservice.epulse.cloud”,并保存退出,如下图:

10.接着就使用到crack破解文件了,将里面的”vcruntime140.dll”文件复制到下面的路径中,如下图:默认路径为”C:Program filesEplanPlatform2.9.4bin”。

11.然后知识兔再打开”Keygen”文件夹,右键以管理员的身份运行”EPlanKeygen.exe”文件:

注意:运行此文件可能会有杀毒软件拦截的现象,知识兔点击添加信任或者是关闭杀毒软件都可

12.运行进入软件界面,知识兔点击”TPL Load”如下图:

13.弹出下图情况,知识兔选择”Keygen”文件夹下的”EPLAN_Ultimate.tpl”文件,选中并打开:

14.这样就完成了软件版本和模块的加载,在知识兔点击”creat”:

15.在这个界面定位至目录C:UsersPublicEPLANCommon,也就是C盘下的”用户”-“公用”-“EPLAN”-“Common”,然后知识兔点击”保存”。

16.接着将”Keygen”文件夹里的”EplanCommon.lir”和”EplanCommon.lit”文件复制粘贴到下面的路径中,并替换掉原来的文件:
默认路径”C:ProgramDataEPLANCommon”

17.EPLAN2022安装破解完成,运行软件即可。

EPLAN2022新功能
1、浅色或深色设计的新设置选项
您现在可为用户界面选择浅色或深色设计。为此,用户界面的用户设置扩展了用户界面设计(命令路径:文件 > 设置 > 用户 > 显示 > 用户界面)。
2、新功能区
现在不再通过菜单和工具栏,而是借助功能区为导航器和图形编辑器选择命令。该功能区与熟知的 Microsoft Office 产品功能区具有相同的功能和结构。

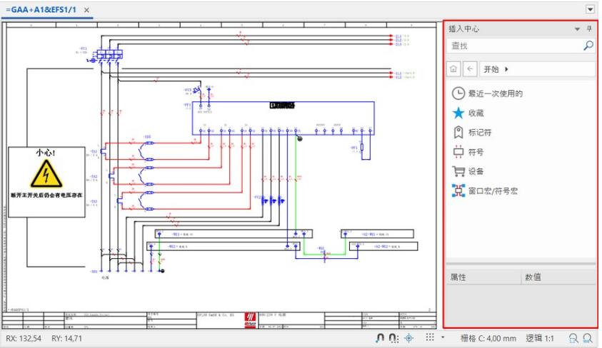
3、用于符号、设备及宏的新插入中心
借助新的插入中心,可通过共同的对话框将不同对象例如符号、设备以及窗口宏和符号宏直接插入到项目页或布局空间中。此对话框还分享了不同的快速访问方式,依次加快项目化的速度。
插入中心的对话框位于图形编辑器或布局空间的右边缘,与弹出对话框一样,知识兔可以取消停靠或停靠。每个打开的页面或布局空间都有一个单独的插入中心。

4、基础项目代替项目模板
现在仅基于基础项目 (*.zw9) 创建项目。基本项目的优势还包括,复制引入到项目中的主数据(例如表格和符号)或参考数据(例如图片文件)。不再支持基于项目模板(*.ept 和 *.epb)创建项目,无法再选择或创建项目模板。因而,创建项目模板对话框已被删除。此外,创建项目对话框中的模板框已被重命名为基本项目。
5、更新项目数据库
为了可以在新版本的 EPLAN 中对旧项目进行编辑,强制要求为这些项目更新项目数据库。旧项目的更新在第一次使用当前版本的 EPLAN 打开旧项目时进行。
如果知识兔不更新旧的项目,则将无法在 2022 版本中打开此项目。
6、重新设计的部件管理
此前用于部件管理的数据库技术已过时,已修改为当前版本。现在有采用 EPLAN 内部格式 *.alk 且具有相应目录 *.adb 的新部件数据库。这些数据库替代旧的 Access 数据库 (*.mdb)。由于更改了表格结构,知识兔使用 SQL 服务器时还必须使用新的 SQL 数据库。

EPLAN 2.9 版本(或更早版本)中的部件数据库在迁移后方可在 2022 版本中使用。同样地,EPLAN 2022 版本中的部件数据库也不能在 2.9(或更早版本)中使用。在此处,知识兔可以将 2022 版本中的部件数据转移到旧的、已更新的部件数据库中(同步部件数据库)。之后可以打开该部件数据库,例如用于进行部件选择或设备选择,但是不可编辑。
软件特色
1、宏变量技术
凭借强大的宏变量技术,该软件在帮助客户节省时间方面又迈上了新的台阶。现在您能够插入最多带8个图形变量的电路图(宏),这些图形变量中包含预设的数据。例如,您可插入电动机启动回路的宏,并选择包含原理图说明和相应工程数据的变量,知识兔以决定断路器、熔断器、过载保护器以及正向/反向起动器等电气元件的容量。该软件会将变量中的所有预设数据应用到您的设计当中。
2、真正的多用户同时设计
不同的用户不仅能够同时在同一个项目地上进行设计工作,而且知识兔还能够实时查看其他用户所作的更改。这绝对是达到最佳工作状态的协同工程!标准转换:它帮助您自动切换图纸上的电气符号和方位,将根据欧洲标准绘制的原理图轻松更改为北美标准,反之亦然。
3、灵活的工程设计流程
知识兔这款软件分享了极大的灵活性,您可以按照自己习惯的流程来进行项目设计。无论您从单线图、BOM、安装板和原理图开始项目设计,该软件都将无缝集成和交叉引用所有的项目数据。您的设计流程将不会再受任何限制!总线拓扑表示:帮助您准确并有逻辑地表示任何总线拓扑连接的设备,并管理设备间的相互关系。
4、与Unicode完全兼容
有了它,您能够以任何语言提交原理图。从中文的接线图到俄语的材料清单,一切都可以自动进行翻译,使得您与国际合作伙伴之间的协作更加容易。
5、单线/多线图
知识兔这款软件能够显示设备在单线和/或多线环境中的连接关系,并在切换和导航项目的同时管理导线的所有属性。
6、智能零部件选择和管理
它通过电气功能的完整定义,分享智能零部件选择并减少差错。例如,您可以根据元件的预定义逻辑电气特性和设计要求,知识兔选择具有正确连接点数的元件。
下载仅供下载体验和测试学习,不得商用和正当使用。















