16J509图集免费下载-16J509铝合金护栏图集下载
16J509图集是根据相关规定设计的一款标准的铝合金护栏图集,介绍了楼梯护栏、平台护栏、市政护栏等多种护栏的选型图、栏板和安装示意图等,为公司安装和设计护栏分享了参考标准。知识兔分享16J509图集免费下载,高清无水印,PDF版本,可打印可下载。
护栏类型介绍
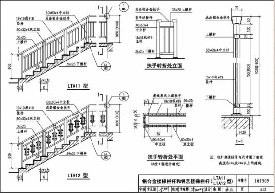
1、楼梯护栏
2、平台护栏
3、市政护栏
4、院墙护栏
5、院墙大门
6、窗护栏
7、通用构造
16J509图集预览
16J509图集百度网盘地址:
链接:https://pan.baidu.com/s/14udrsjbMrmM-qbkP-bABMg?pwd=yaa7
提取码:yaa7下载仅供下载体验和测试学习,不得商用和正当使用。













