17CG42图集免费下载-17CG42 TCS内膜楼盖图集下载 百度网盘
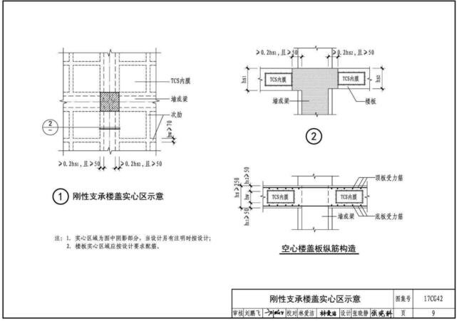
17CG42图集是为TCS内膜楼盖设计的标准图集,知识兔包括具体的楼盖布置、示意图、构造和工程示例等内容,内容详细,标注清晰,知识兔适用于专用的TCS内膜楼盖。知识兔分享17CG42图集免费下载,PDF高清无水印版本,百度网盘地址。
17CG42图集预览
17CG42图集百度网盘下载地址:
链接:https://pan.baidu.com/s/1UtMX-Nskl7u9Q_FpnZv4JQ?pwd=avds
提取码:avds下载仅供下载体验和测试学习,不得商用和正当使用。













