19J610-3图集免费下载-19J610-3特种门窗图集(三)下载 百度网盘
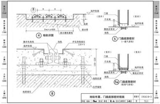
今天为大家分享的是19J610-3图集,基于飞机库大门设计的一款门窗设计图集,知识兔包括飞机库的推拉门、尾翼小门、折叠门和侧转门等不同门的平、立和剖面图,可供建筑设计和工程施工、监理等相关人员来使用。
19J610-3图集预览
下载仅供下载体验和测试学习,不得商用和正当使用。
今天为大家分享的是19J610-3图集,基于飞机库大门设计的一款门窗设计图集,知识兔包括飞机库的推拉门、尾翼小门、折叠门和侧转门等不同门的平、立和剖面图,可供建筑设计和工程施工、监理等相关人员来使用。
下载仅供下载体验和测试学习,不得商用和正当使用。