20CJ100-1图集-20CJ100-1铁路隧道防护门(一)玻璃钢轻质防护门图集下载
20CJ100-1是一款防护门相关的图集,此图集主要介绍了铁路隧道防护门实例、双扇滑动预埋式隧道防护门、预埋式单扇门门框埋件详图以及各种防护门的安装详图等,方便建筑设计、施工和验收等人员的使用。
20CJ100-1图集预览
20CJ100-1图集目录
说明
铁路隧道防护门实例
铁路隧道防护门选用图
单扇平开预埋式隧道防护门
双扇平开预埋式隧道防护门
双扇带通风窗平开预埋式隧道防护门
双扇带防爆波悬板平开预埋式隧道防护门
双扇滑动预埋式隧道防护门
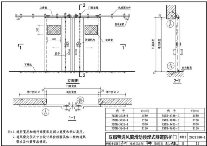
双扇带通风窗滑动预埋式隧道防护门
平开预埋式隧道防护门安装详图
双扇滑动预埋式隧道防护门安装详图
预埋式单扇门门框埋件详图
预埋式双扇门门框埋件详图
预埋式双扇滑动门门框埋件详图
单扇平开锚固式隧道防护门
双扇平开锚固式隧道防护门
双扇带通风窗平开锚固式隧道防护门
双扇带防爆波悬板平开锚固式隧道防护门
双扇滑动锚固式隧道防护门
双扇带通风窗滑动锚固式隧道防护门
平开锚固式隧道防护门安装详图
双扇滑动锚固式隧道防护门安装详图
铰页(合页)及防爆波悬板详图
铁路隧道防护门防脱链示意图
铁路隧道工程案例
20CJ100-1图集百度网盘下载地址:
链接:https://pan.baidu.com/s/1PwMq872idfz7xB6SQTB2BA?pwd=bj7c
提取码:bj7c下载仅供下载体验和测试学习,不得商用和正当使用。













